차선분리대 상세도 dwg 캐드 파일 다운 (유형과 장단점)
차선 분리대는 도로에서 차로를 분리하는 중요한 안전장치입니다. 차량이 예기치 않게 차로를 이탈하거나 충돌하는 것을 방지하는 데 도움이 됩니다. 차선 분리대는 또한 도로 용량을 늘리고 통행 시간을 줄이는 데 도움이 될 수 있습니다.
차선 분리대의 유형
차선 분리대는 다양한 유형과 재료로 구성됩니다. 가장 일반적인 유형은 다음과 같습니다.
1. 플라스틱 차선 분리대 : 가볍고 유연하며 설치하기 쉽습니다.
2. 콘크리트 차선 분리대 : 내구성이 뛰어나며 중고속 도로에 적합합니다.
3. 금속 차선 분리대 : 충격 에너지를 흡수하도록 설계되었으며 속도가 빠른 도로에 적합합니다.
차선 분리대의 장점
1. 향상된 안전성 : 차선 분리대는 차량이 예기치 않게 차로를 이탈하거나 충돌하는 것을 방지합니다.
2. 증가된 도로 용량 : 차선 분리대는 도로 용량을 늘릴 수 있습니다.
3. 감소한 통행 시간 : 차선 분리대는 통행 시간을 줄이는 데 도움이 될 수 있습니다.
4. 개선된 교통흐름 : 차선 분리대는 교통 흐름을 개선할 수 있습니다.
5. 감소된 유지 보수 비용 : 차선 분리대는 유지 보수 비용을 줄이는 데 도움이 될 수 있습니다.
차선 분리대의 단점
1. 증가된 비용 : 차선 분리대는 설치 및 유지 보수 비용이 많이 들 수 있습니다.
2. 국한된 시야 : 차선 분리대는 시야를 가릴 수 있습니다.
3. 긴급 차량의 접근성 차단 : 차선 분리대는 긴급 차량이 사고 현장에 접근하는 것을 차단할 수 있습니다.
4. 자전거 및 오토바이에 대한 위험 : 차선 분리대는 자전거 및 오토바이 운전자에게 위험할 수 있습니다.
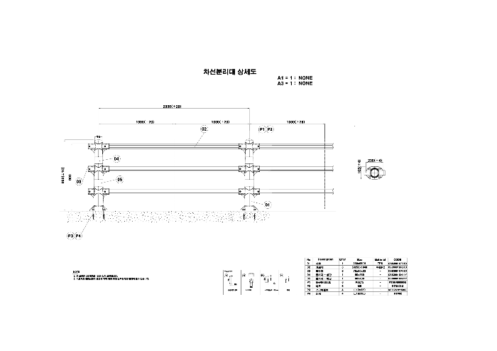
차선 분리대 설치 및 상세도
1. 도로 표면 준비
2. 차선 분리대 설치
3. 차선 분리대 보호
차선분리대 상세도

'캐드 상세도' 카테고리의 다른 글
| 합벽식 옹벽 상세도 dwg 캐드 파일 다운 (장점, 구성요소, 설계 고려 사항, 시공 순서, 유지 관리) (0) | 2024.08.23 |
|---|---|
| 잔디블럭포장 상세도 dwg 캐드 파일 다운 (종류 및 장점과 설치 방법) (0) | 2024.08.23 |
| 석축쌓기상세도 캐드 dwg 파일 다운 (0) | 2024.08.19 |
| 메쉬휀스 상세도 dwg 캐드 파일 다운 (0) | 2024.08.17 |
| 소단부식재계획 상세도 dwg 캐드 파일 다운 (0) | 2024.08.16 |
댓글