운동기구 상세도 dwg 캐드 파일 다운
운동기구 설계에 있어서 정확한 캐드(CAD) 상세도는 제품의 품질, 안전성, 성능을 보장하는 데 필수적입니다. 이러한 기술을 통해 엔지니어는 기계의 복잡한 구성 요소를 정확하고 효율적으로 모델링하여 실제 제조 전에 디자인을 최적화할 수 있습니다. 운동기구 캐드 상세도에는 다음과 같은 중요한 장점이 있습니다.
링크 및 조인트
링크는 운동기구의 움직임을 전달하는 데 사용되는 구성 요소입니다. 캐드 상세도는 각 링크의 재료, 치수, 무게를 포함해야 합니다. 조인트는 링크를 서로 연결하고 운동을 제한하는 데 사용되는 구성 요소입니다. 캐드 상세도는 각 조인트의 유형, 크기, 위치를 명확히 정의해야 합니다.
액추에이터
액추에이터는 운동기구에 힘과 움직임을 제공하는 데 사용되는 구성 요소입니다. 캐드 상세도는 액추에이터 유형, 용량, 속도, 스트로크 길이를 포함해야 합니다.
세부 사항 모델링
운동기구 캐드 상세도에서 세부 사항 모델링은 정확한 형상, 공차, 표면 처리를 보장하는 데 필수적입니다. 다음은 세부 모델링에서 고려해야 할 핵심 사항입니다.
공차 및 피팅
정밀한 조립을 보장하기 위해 구성 요소 사이의 공차와 피팅이 정확하게 지정되어야 합니다. 캐드 상세도는 강제 피팅, 슬라이딩 피팅, 간섭 피팅 등 다양한 공차 유형을 정의해야 합니다.
구성 요소 표준화
구성 요소 표준화는 비용을 절감하고 조립 시간을 단축하는 데 도움이 될 수 있습니다. 캐드 상세도는 재사용 가능한 부품과 표준화된 하드웨어를 명확히 정의하여 표준화된 구성 요소 사용을 촉진해야 합니다.
2D 및 3D 도면
캐드 상세도에는 부품 및 조립품을 정의하는 2D 및 3D 도면이 포함되어야 합니다. 2D 도면은 치수, 공차, 표면 처리를 보여주는 정밀 도면입니다. 3D 도면은 조립품의 시각화를 제공하고 간섭과 장착 문제 식별에 도움이 됩니다.
운동기구 상세도 dwg 캐드 파일
2인 실외 걷기
2인 허리 돌리기
상체근육 풀기
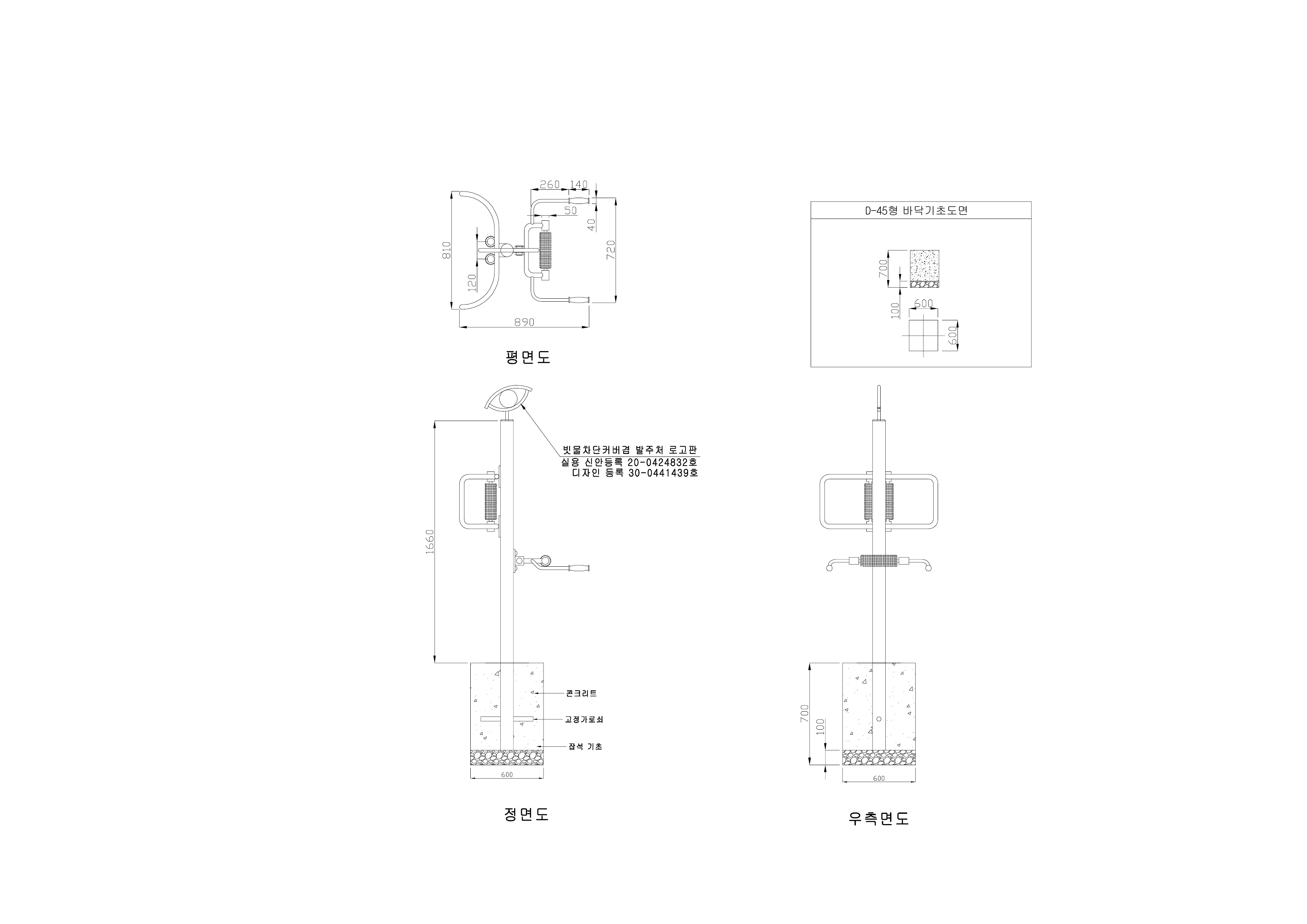
안마기
윗몸일으키기
키높이훈련기
타원형 걷기
태극판 돌리기
허리등안마기









'캐드 상세도' 카테고리의 다른 글
| L형측구 및 경계석 상세도 dwg 캐드 파일 다운 (장점 알아보기) (0) | 2024.08.30 |
|---|---|
| 연석 및 차수벽 상세도 dwg 캐드 파일 다운 (유형과목적) (0) | 2024.08.29 |
| 관보호공 상세도 dwg 캐드 파일 다운 (개요, 필요성, 설치 방법과 조건) (0) | 2024.08.27 |
| 관기초 상세도 dwg 캐드 파일 다운 (강성관, 연성관 장단점) (0) | 2024.08.27 |
| 장애인용 유도블록 포장 설치 상세도 dwg 캐드 파일 다운 (종류, 설치, 의의, 중요성) (0) | 2024.08.26 |
댓글