편지식도로표지판상세도 캐드 dwg 파일 다운
반응형
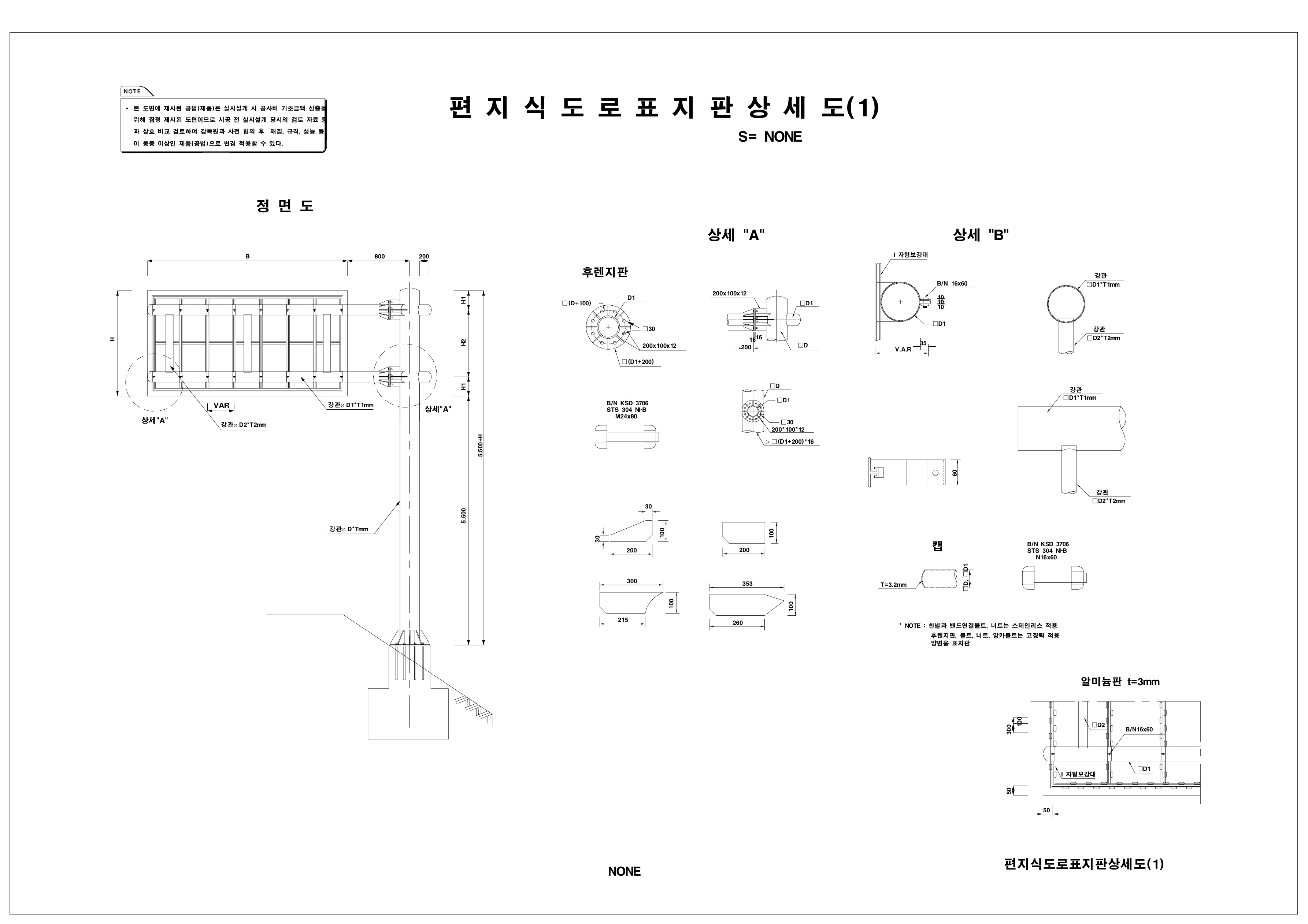
편지식도로표지판은 기둥에 설치되어있는 가로재에 표지판을 부착하는 방식으로 대로의 도로에 많이 사용하는 도로표지판입니다.
편지식도로표지판상세도 캐드 dwg 파일 다운
반응형


반응형
'캐드 상세도' 카테고리의 다른 글
| 볼라드 상세도 dwg 캐드 파일 다운 (필요한 사람만) (0) | 2024.07.29 |
|---|---|
| 내민식도로표지판상세도 dwg 캐드 파일 다운 (0) | 2024.07.25 |
| 차선규제봉상세도 dwg 캐드 파일 필요시 다운 (0) | 2024.07.24 |
| 산석옹벽표준단면도 (dwg 캐드 파일) 다운 (0) | 2024.07.23 |
| 옹벽신축이음상세도 (dwg 캐드 파일) 다운 (0) | 2024.07.23 |
댓글